Duże mieszkanie w centrum Białogardu.
Białogard Pokaż na mapie ›
Ogłoszenie archiwalne Wygasło: Niedziela, 02 Listopad, 2025 22:24
379 000 zł
3477 zł/m2
Szczegóły ogłoszenia
- Kategoria: Mieszkania / Sprzedaż
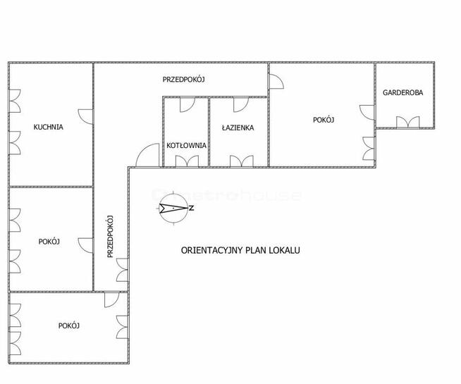
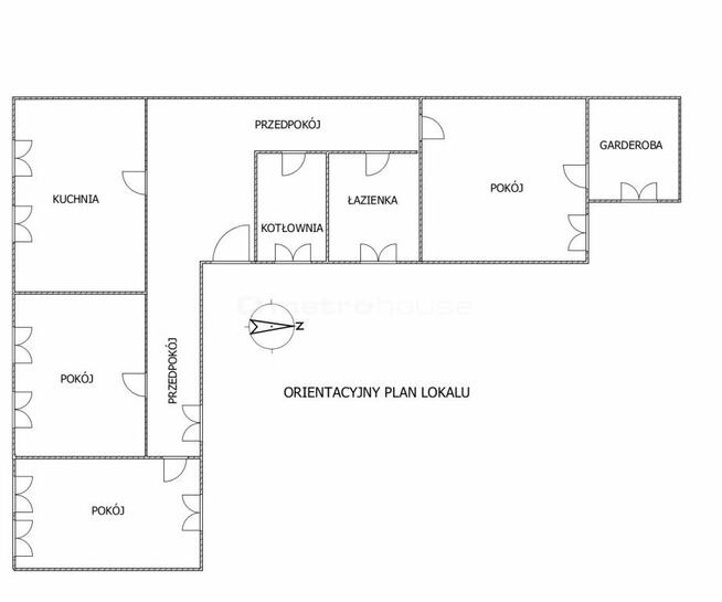
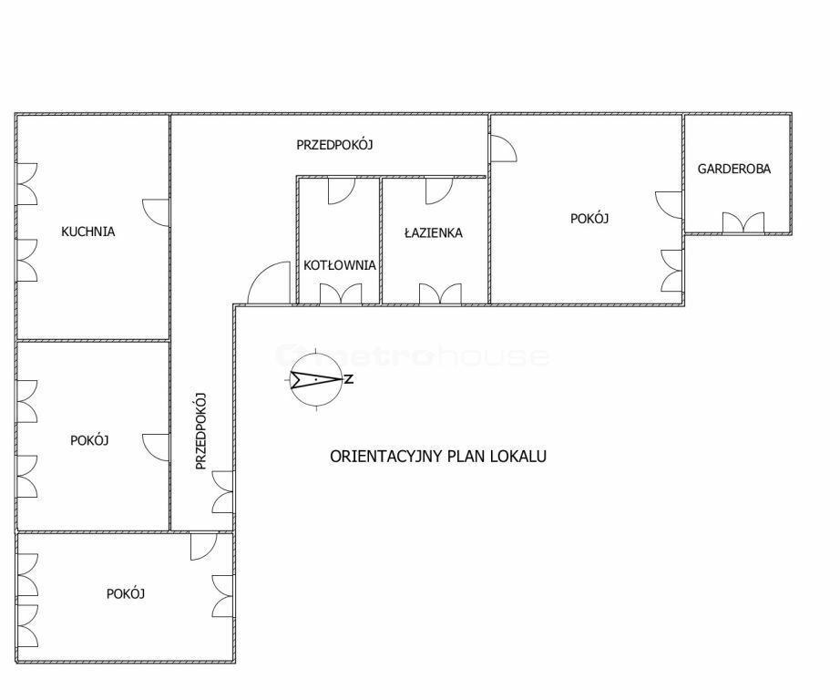
- Powierzchnia:109 m2
- Zabudowa:Kamienica
- Piętro :2 piętro
- Liczba pięter:2 piętra
- Rynek:Wtórny
- Rok budowy:1930
- Sprzedaż:Pośrednik
- Cena: 379 000 zł / 3477 zł/m2
Opis oferty
Oferuję duże, ponad 100 metrowe mieszkanie trzypokojoweLokal rozkładowy. Trzy nieprzechodnie pokoje, w tym sypialnia z osobną garderobą. Duża oddzielna, widna kuchnia, łazienka z oknem i pomieszczenie gospodarcze, z piecem c.o.
Elektryka wymieniona w części pomieszczeń. Gaz doprowadzony do mieszkania, bez podłączenia do kaloryferów.
Okna plastikowe.
W kamienicy nowy dach, zrobiony remont komórek przynależnych na podwórku. Nowa elewacja. Doskonała lokalizacja w Centrum Białogardu, kamienica przy budynku poczty.
Więcej informacji udzielę telefonicznie.
Polecam do obejrzenia i zakupu.
Czy wiesz, że możemy przygotować dla Ciebie prezentację on-line nieruchomości? Skontaktuj się z naszym Agentem i zapytaj o szczegóły.
Pomimo, iż Doradcy Metrohouse przykładają szczególną staranność do rzetelnego prezentowania informacji o nieruchomości, nie zawsze jest możliwa weryfikacja wszystkich danych przekazanych od osób trzecich. Niniejsza prezentacja oferty nie jest ofertą w rozumieniu Kodeksu Cywilnego i ma charakter wyłącznie informacyjny.
Sprawdź zainteresowanie tym ogłoszeniem
Wyświetlenia
Data dodania
Ostatnio widziany
Obserwujących
Wysłane zapytania
Odsłony telefonu
Powiadom o podobnych ogłoszeniach
Lokalizacja: Białogard
Kategoria: Nieruchomości » Mieszkania » Sprzedaż
Cena: od 322000 zł do 436000 zł Powierzchnia : od 93 m2 do 125 m2
Chcę otrzymywać powiadomienia o nowych ofertach
To ogłoszenie jest archiwalne i może być nieaktualne.
- Wypromuj ogłoszenie
- Zgłoś naruszenie
- Edytuj/usuń ogłoszenie
- Udostępnij ogłoszenie
- Dodaj na Facebook
























